
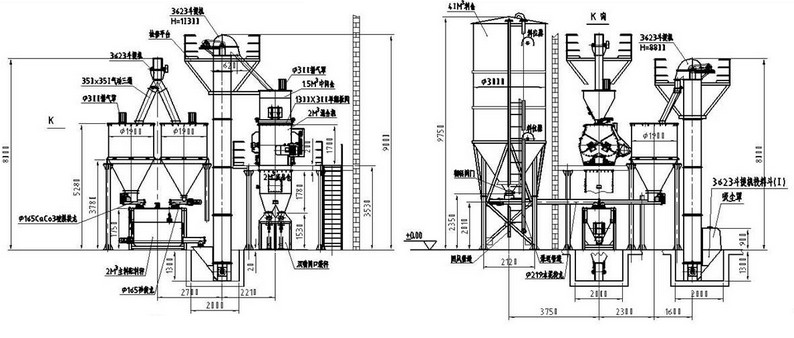
500,000 T/Y ready-mixed mortar production line has high mixing efficiency. The mixing time of all the material into the mixing tanks is 0.5-3 minutes. And the uniformity of the material can reach more than 99.8%. Fote is a complete configuration of dry-mixed mortar production line supplier with high reputation.


Thank you for your interest in Kailide machine. Any of your comments or suggestions will be welcome to fill in the form of the following email via us.Please, or call +86-18903841927. Do not worry, we will not share your name, address or phone number with anyone. We love our company, and will do our best to help you. Thank you for taking the time to get in touch with us. E-mail: mrjohnfan168@gmail.com Tel: +86-18903841927